Read our latest news and articles.

We provide an SDK and viewer, ready-made , and a testing environment
for you.

Recent blog posts

Collaborate

Build Drawing Workflows Inside Your System with SDKs & APIs

Why embedding drawing workflows via SDK and API is better than external tools—and how integrable components keep control, consistency, and scale.

January 4, 2026

Collaborate

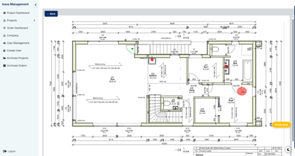
Scale and Precision — Getting Measurements Right on Technical Drawings

Learn how Viewsoft’s Takeoff Module brings trusted measurement tools to digital drawings — ensuring accuracy, consistency, and real-time collaboration across teams.

October 16, 2025

All blog posts

Build Drawing Workflows Inside Your System with SDKs & APIs
Collaborate
Build Drawing Workflows Inside Your System with SDKs & APIs
Why embedding drawing workflows via SDK and API is better than external tools—and how integrable components keep control, consistency, and scale.
January 4, 2026
Scale and Precision — Getting Measurements Right on Technical Drawings
Collaborate
Scale and Precision — Getting Measurements Right on Technical Drawings
Learn how Viewsoft’s Takeoff Module brings trusted measurement tools to digital drawings — ensuring accuracy, consistency, and real-time collaboration across teams.
October 16, 2025
Rendering Heavy Drawings in the Browser — Without Losing Performance
Embed
Rendering Heavy Drawings in the Browser — Without Losing Performance
Discover how Viewsoft’s modular web viewer architecture enables fast, secure, and client-side rendering of technical drawings — optimized for PDF, CAD, and complex projects.
October 16, 2025
From Viewing to Doing: Turning Drawings into Active Workspaces
From Viewing to Doing: Turning Drawings into Active Workspaces
Discover how drawings become active workspaces. From real-time collaboration to advanced measurement — move from viewing to doing.
September 30, 2025
Beyond SDK: Why Modules Are the Future of Web Viewers
Embed
Beyond SDK: Why Modules Are the Future of Web Viewers
Discover why modules outperform traditional Web Viewer SDKs. Faster workflows, less risk, and full ownership of your drawings.
September 29, 2025
Managing Technical Drawings in Your Platform? There’s a Better Way Than Building It All
Embed
Managing Technical Drawings in Your Platform? There’s a Better Way Than Building It All
Vekke refleksjon, bygge tillit og føre brukeren mot modulsiden for Takeoff – uten å selge.
May 16, 2025
Looking for an SDK? Why an Embeddable Module Might Be the Better Start
Embed
Looking for an SDK? Why an Embeddable Module Might Be the Better Start
If you're building a platform that deals with technical drawings – whether it's in construction, manufacturing, or planning – chances are you're conside...
May 16, 2025
From Manual Work to Smart Takeoffs – A Shift in Mindset
Connect
From Manual Work to Smart Takeoffs – A Shift in Mindset
Let’s be honest: Most teams working with drawings still rely on some version of the manual routine. ● Open the PDF in a viewer ● Zoom in, measure, note...
May 16, 2025
Are Your Estimations Based on Assumptions or Accuracy?
Connect-målgruppe
Are Your Estimations Based on Assumptions or Accuracy?
Vekke refleksjon, bygge tillit og føre brukeren mot modulsiden for Takeoff – uten å selge.
May 16, 2025
Cutting Five-Digit Losses: How Kos Krebs Embedded Takeoff Tools Into Their Workflow
Takeoff and Estimation
Cutting Five-Digit Losses: How Kos Krebs Embedded Takeoff Tools Into Their Workflow
Learn how Kos Krebs improves takeoff accuracy, avoids PDF errors, and saves time and money with Viewsoft’s embedded module.
May 9, 2025