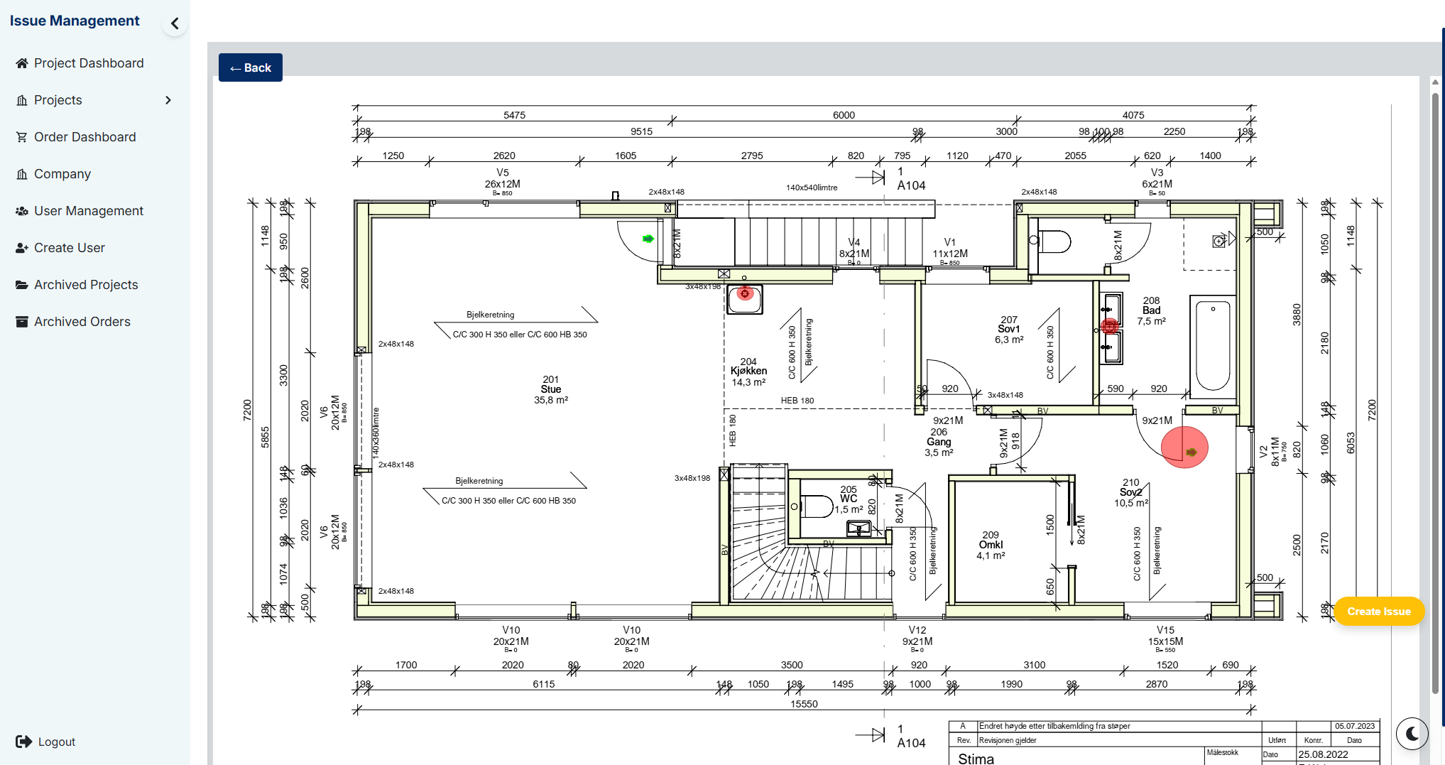
The Takeoff module transforms your drawings into structured data. Measure directly on CAD (DWG/DXF) or PDF, export to Excel or BI, and integrate with your existing tools via API. Unlike open-source libraries or heavy SaaS, this module is ready-to-use, flexible, and built for integration.

Why digital takeoff matters
Works in the browser, embeddable in your own product, or
deployed as a standalone enterprise app.

Works with PDF & DWG/DXF drawings
Upload, measure, collaborate, and export to Excel or BI
Integrates with SharePoint, ERP or DMS
Keep ownership of data, users and costs
Faster, more accurate estimates across teams
Add measurement & quantity takeoff directly into your own product.
Embeddable module – API-first, integrate in weeks
White-label ready – adapt UI and branding
CAD-level precision – layers, blocks, attributes supported
Save years of in-house dev and scale faster
Export-ready for ERP, DMS or project tools
Embedded Takeoff into their solution for better accuracy and more control in projects. Now integrated into their own enterprise platform.
Integrated Takeoff as a white-labeled module in their platform — adding CAD/PDF measurement without building it from scratch.